Особенности:
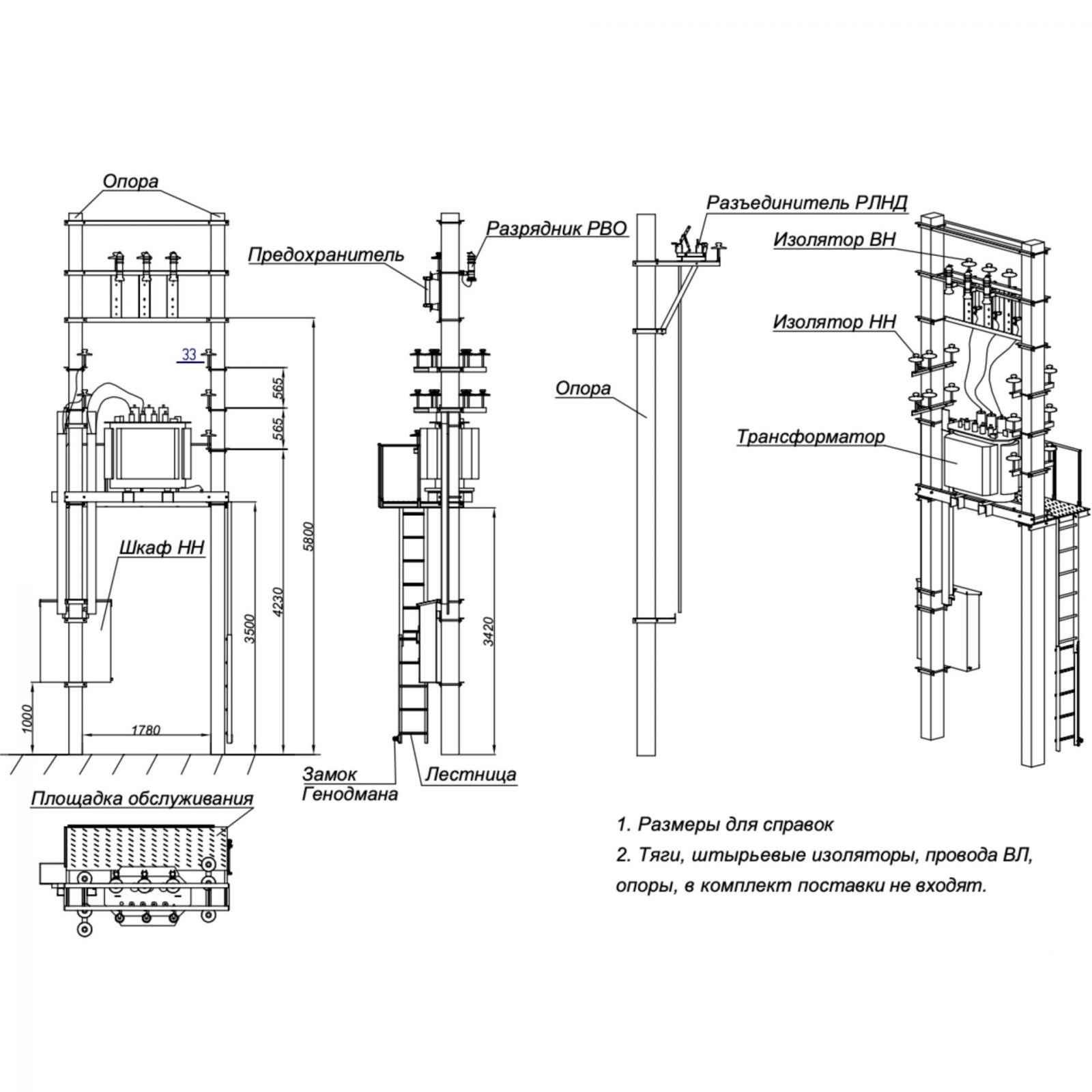
- Высоковольтный ввод – воздушный;
- Низковольтный вывод – воздушный, кабельный, воздушно-кабельный;
- Подключение к ВЛ – посредством разъединителя РЛНД или РЛК (устанавливается на ближайшей опоре);
- Учёт активной или активно-реактивной электрической энергии (по запросу);
- Фидер уличного освещения, оснащенный устройством ручного или автоматического (фото-реле) включения/отключения (по запросу);
Виды защит:
- от атмосферных перенапряжений на стороне высокого 10(6) кВ и низкого 0,4 кВ напряжений (по запросу);
- от межфазных коротких замыканий;
- от перегрузки и коротких замыканий линий 0,4кВ.
Достоинства:
- Безопасны для окружающей среды;
- Конструкция способствует быстрому монтажу и пуску на месте эксплуатации;
- Эстетичный внешний вид;
- Возможность комплектации трансформаторами серии ТМГ.
Условия транспортировки:
Транспортировка КТП/С осуществляется составными частями.
Условия эксплуатации:
- Климатическое исполнение и категория размещения по ГОСТ 15150 – У1 (возможно исполнение –УХЛ1);
- Высота над уровнем моря – не более 1000 м;
- Окружающая среда не взрывоопасная, не содержащая токопроводящей пыли, агрессивных газов и паров в концентрациях, снижающие параметры подстанции в недопустимых пределах.
- Не предназначены для работы в условиях тряски и вибраций.













